Indendørs stue og spisekøkken med store vinduer ud til en have med grønne planter og lilla blomster.

Tilbygning til 60ér villa i Hørsholm

Det oprindelige hus er tegnet i 1963 af arkitekt Ole. M. Sørensen, og er et klassisk eksempel på 60ér arkitektur. Huset består af to vægge i lysegrå tegl mod øst og vest, som bær et markant fladt tag. Mod nord og syd er facaderne lette med store felter af glas og træbeklædning. Renoveringen & tilbygningen udvider huset mod syd med største respekt for den oprindelige arkitektur.

  • En moderne enkelt- eller fleretagers bolig med stort udendørs terrasse, omgivet af grønne træer og have.
  • Moderne enkelt hus med store vinduer, omgivet af grønne træer og buske, med udendørs spiseområde og blomster i forgrunden.
En moderne indretning af et åbent køkken og spisestue med lys træmøbler og store vinduesåbninger, der vender ud mod en have med grønne planter og lilla blomster.

Køkkenalrum set fra sofakrog

Et lyst moderne stue med stort vindue, hvid sofa, træbord, gulvlampe, blomster, og udsigt til have med grønne planter og træer.

Sofakrog

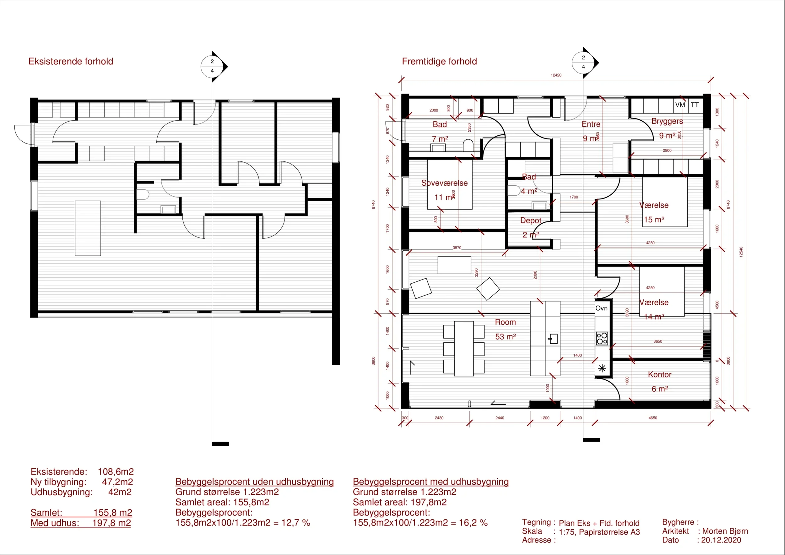
Bygningsplan med områdebeskrivelser, hvor den eksisterende bygning er på 108,6 m2, den nye tilbygning er 47,2 m2, og den eksisterende udhusbygning er 42 m2. Detaljer om bygningsprocenter og arealer for forskellige værksteder, værelser og andre rum er angivet.

Plan tilbygning og ombygning Hørsholm Nordsjælland

Flyfoto af en boligområde med huse, haveområder, veje og grøntområder.

Luftfoto af villakvarteret, Hørsholm, Nordsjælland

Situationsplan for en ejendom med eksisterende bygninger, et tilbygging, et udhus, en have, en swimmingpool, og adjacente veje og naboer, med mål og topografiske detaljer.

Situationsplan, Tilbygning Hørsholm, Nordsjælland

Skitse af et nybyggeri med fire facadeudsnit, herunder nord-, syd-, øst- og vestfacade. Alt er markeret med dimensioner og annotations om renovering, vinduer og forhold til terræn.

Tilbygning og ombygning af villa i Hørsholm, Nordsjælland