Bølgeknust strand med sommerhuse bagved, mødre med børn, sand og vand.

Nybyg, sommerhus i Malling, Midtjylland

Karakteristisk for sommerhusene ud til Malling Strand er at de er sammensatte volumener af mindre saddeltagshuse. Sommerhuset skriver sig ind i denne fortælling, med en bygningskrop som består af to volumener som er sat sammen forskudt.

En teknisk disponeringsplan for en ejendom med mål, tekst og målinger, inklusive carport, og eksterne elementer, tegningsoplysninger, dato og arkitekt.

Situationsplan

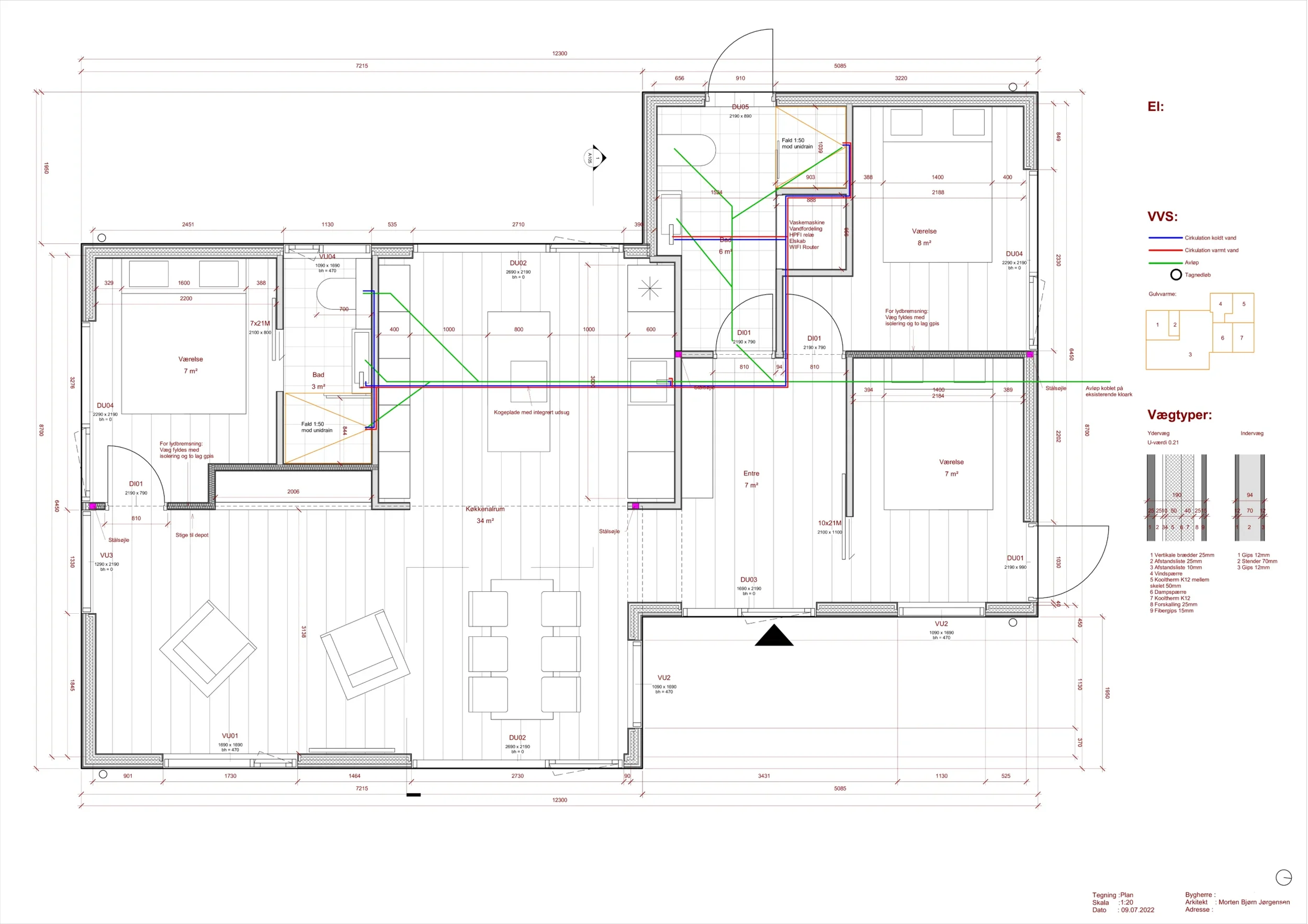
arkitekttegning af en bolig med detaljer om værelser, døre, vinduer, installationer og mål på metermål.

plantegning sommerhus aarhus

Bygningsfunktion med tagetog vægge, detaljerne er angivet med mål og materialer i teknisk tegning.

Snit nybygget sommerhus i Malling

Teknisk tegning af et hussetage med facader set fra øst, nord, syd og vest, inklusive dør- og vinduesplaceringer og materialer.

Nybygget sommerhus i Aarhus, Midtjylland