Tilbygning til sommerhus i Rørvig, Sjælland, med fokus på lys og sammenhæng mellem ny og eksisterende bygning

Tilbygning til sommerhus i Rørvig

Rørvig sommerhusområde er karakteriseret af huse med flade saddeltag og store udhæng. Særlig for stedet er grundenes store størrelser, hvilket resulterer i spredte bebyggelser, med helt eller delvist adskilte bebyggelser. For at passe ind i denne fortælling er annekset placeret med afstand fra hovedhuset, forbundet af en gang. 

Satellitebillede af et boligområde med mange huse, træer og veje.

Luftfoto Rørvig, Sjælland

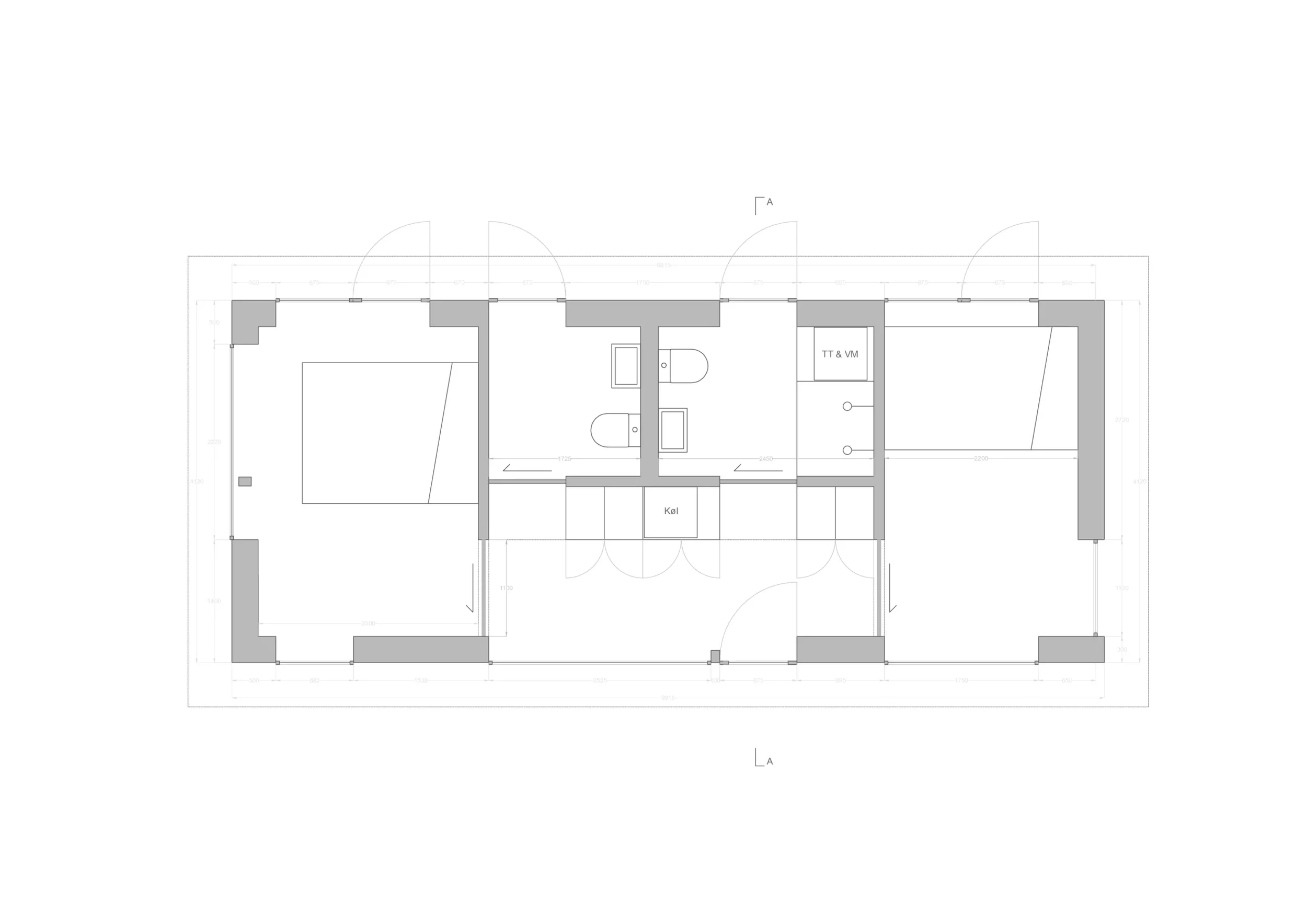
Arkitektonisk plantegning af en lejlighed med værelser, badeværelse, køkken og udgang til terrasse

Plan tilbygning i Rørvig

Arkitektoniske tegninger af et træhus set fra forskellige vinkler, inklusive facade og sideperspektiv.

Facadetegning, tilbygning - Rørvig, Sjælland